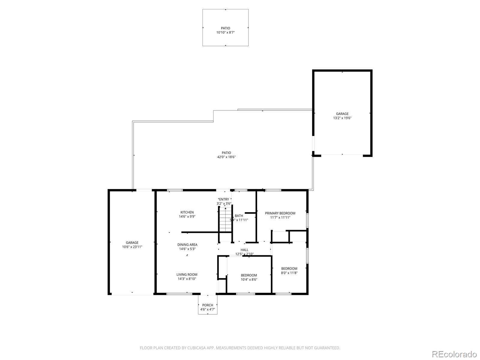
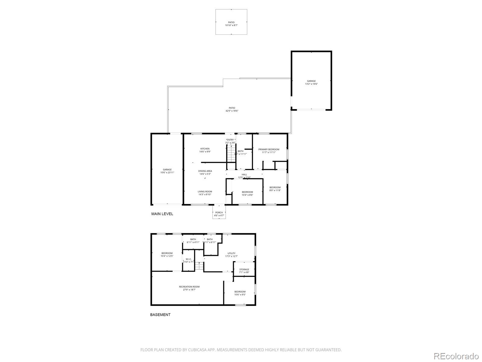
Beautifully updated brick ranch with a brand new roof (to be installed prior to closing), timeless character, solid bones, excellent storage, and a backyard designed for entertaining! This home features refinished original hardwood floors and a thoughtfully updated kitchen with brand new stainless steel appliances, quartz countertops, added cabinetry with butcher block workspace, porcelain tile flooring, and a gas line available for a range (current range is electric). The main level offers three comfortable bedrooms and a full bathroom, while the finished basement serves as a private primary suite retreat-remodeled in 2024-with a spacious non-conforming bedroom and a beautifully updated bathroom. An additional non-conforming bedroom or office in the basement provides ideal space for guests, remote work, or flexibility. Basement finishes include drywall and carpet completed in 2019, along with a functional laundry space featuring a utility sink. Car enthusiasts will appreciate the two separate one-car garages, including an oversized detached garage, each with its own driveway. A large Tuff Shed with loft and built-in shelving provides exceptional storage. Step outside to enjoy the thoughtfully designed backyard, professionally landscaped in 2021 with a retaining wall, irrigation system, and multiple patio spaces. An expanded paver patio (2022) just off the kitchen is perfect for outdoor dining, while the lower yard offers space for a fire pit, play area, and gatherings. Additional upgrades include a newer water heater (2019), energy-efficient west-facing vinyl windows (2025), newer garage door (2021), and numerous system improvements for peace of mind. Ideally located within walking distance to Hackberry and Little Dry Creek Park, just minutes to Olde Town Arvada, multiple grocery options (including a future Whole Foods), Indian Tree Golf Club, and with quick access to I-70, I-25, and US-36-this home offers both comfort and convenience in a prime location.

Property Details of 7672 Saulsbury Street

Property Details

Interior Features

Utilities and Appliances

Community

Other Details

Listed by Brenda Bisque of MB Marston and Blue (brenda.bisque@gmail.com,720-518-9606)

Map Location

The content relating to real estate for sale in this Web site comes in part from the Internet Data eXchange (“IDX”) program of METROLIST, INC., DBA RECOLORADO® Real estate listings held by brokers other than Kim Schantz are marked with the IDX Logo. This information is being provided for the consumers’ personal, non-commercial use and may not be used for any other purpose. All information subject to change and should be independently verified.

This publication is designed to provide information with regard to the subject matter covered. It is displayed with the understanding that the publisher and authors are not engaged in rendering real estate, legal, accounting, tax, or other professional services and that the publisher and authors are not offering such advice in this publication. If real estate, legal, or other expert assistance is required, the services of a competent, professional person should be sought.

The information contained in this publication is subject to change without notice. METROLIST, INC., DBA RECOLORADO MAKES NO WARRANTY OF ANY KIND WITH REGARD TO THIS MATERIAL, INCLUDING, BUT NOT LIMITED TO, THE IMPLIED WARRANTIES OF MERCHANTABILITY AND FITNESS FOR A PARTICULAR PURPOSE. METROLIST, INC., DBA RECOLORADO SHALL NOT BE LIABLE FOR ERRORS CONTAINED HEREIN OR FOR ANY DAMAGES IN CONNECTION WITH THE FURNISHING, PERFORMANCE, OR USE OF THIS MATERIAL.

All real estate advertised herein is subject to the Federal Fair Housing Act and the Colorado Fair Housing Act, which Acts make it illegal to make or publish any advertisement that indicates any preference, limitation, or discrimination based on race, color, religion, sex, handicap, familial status, or national origin.

METROLIST, INC., DBA RECOLORADO will not knowingly accept any advertising for real estate that is in violation of the law. All persons are hereby informed that all dwellings advertised are available on an equal opportunity basis.

©2026 METROLIST, INC., DBA RECOLORADO® – All Rights Reserved 6455 S. Yosemite St., Suite 300 Greenwood Village, CO 80111 USA

ALL RIGHTS RESERVED WORLDWIDE. No part of this publication may be reproduced, adapted, translated, stored in a retrieval system or transmitted in any form or by any means, electronic, mechanical, photocopying, recording, or otherwise, without the prior written permission of the publisher. The information contained herein including but not limited to all text, photographs, digital images, virtual tours, may be seeded and monitored for protection and tracking.

Hi there! How can we help you?

Contact us using the form below or give us a call.

Send Us A Message:

Do not fill in this field:

This site is protected by reCAPTCHA and the Google Privacy Policy and Terms of Service apply.

Hi there! How can we help you?

Contact us using the form below or give us a call.

Send Us A Message:

Do not fill in this field:

This site is protected by reCAPTCHA and the Google Privacy Policy and Terms of Service apply.

Hi there! How can we help you?

Contact us using the form below or give us a call.

Send Us A Message:

Do not fill in this field:

This site is protected by reCAPTCHA and the Google Privacy Policy and Terms of Service apply.

Do not fill in this field:

This site is protected by reCAPTCHA and the Google Privacy Policy and Terms of Service apply.

Do not fill in this field:

This site is protected by reCAPTCHA and the Google Privacy Policy and Terms of Service apply.

Do not fill in this field:

This site is protected by reCAPTCHA and the Google Privacy Policy and Terms of Service apply.

$

Do not fill in this field:

This site is protected by reCAPTCHA and the Google Privacy Policy and Terms of Service apply.